Gelijkvloers te Torenstraat 1 bus 02 , 3680 MAASEIK

Op aanvraag

Algemeen
Adres
:
Torenstraat 1 bus 02 , 3680 MAASEIK
Prijs
:
Op aanvraag
Bouwjaar
:
2017
Aantal slaapkamers
:
1
Aantal badkamers
:
1
Beschikbaar vanaf
:
01-03-2026
Comfort
Verwarming
:
Aardgas
Lift
:
Ja
Keuken
:
Geïnstalleerd voorzien van alle comfort
Beglazing
:
Dubbel
Materiaal ramen
:
PVC
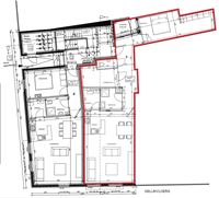
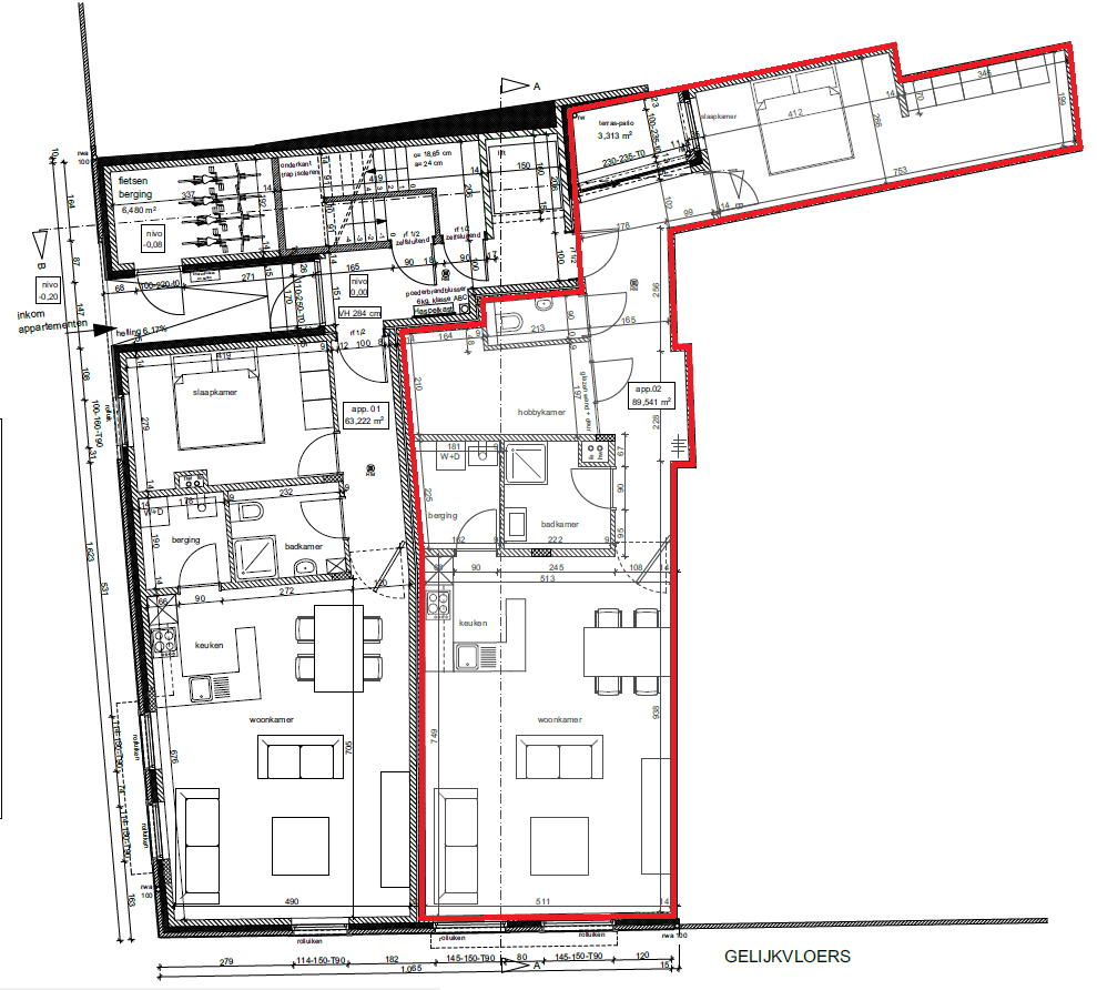
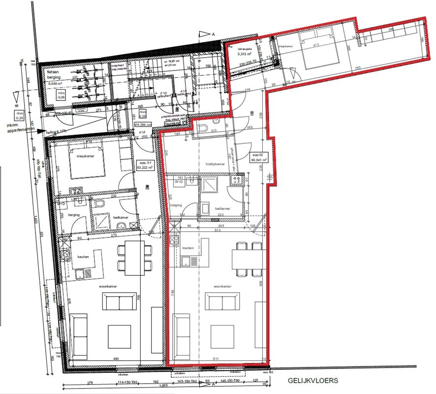
Plannen en bijlagen
Omschrijving

Instapklaar appartement met 1 slaapkamer +(bureel/hobbykamer), gelegen in het centrum van Maaseik.

 

ALGEMEEN

- Bouwjaar 2017.

- Verwarming op aardgas.

- PVC ramen  met dubbele beglazing.

- Voorzien van grijze tegelvloer.

- Gemeenschappelijke fietsenberging.

- Gemeenschappelijke kosten: 50 euro per maand, inhoudende onderhoud en gebruik gemeenschappelijke delen en lift (volgens jaarlijkse afrekening).

 

INDELING

- Ruime inkomhal met schruifraam naar binnenkoer.

- Apart toilet: hangtoilet, wasmeubel en verluchtingssysteem.

- Ruime woonkamer.

- Volledig uitgeruste open keuken met Siemens apparatuur: combioven, keramische kookplaat en dampkap, vaatwasser en koelkast.

- Berging aan de keuken: aansluiting wasmachine, gootsteen, verluchtingssysteem en Vaillant verwarmingsketel.

- Badkamer: douche en badkamermeubel.

- Slaapkamer 1 met dressingruimte:  telefoon- en TV aansluiting.

- Slaapkamer 2 / bureel/ hobbykamer met glazen deur, TV -en telefoon aansluiting.

 

Vrij per 01/03/2026.

 

Financiële Info
Energie & Elektriciteit
EPC
:
42 kWh/m².jaar
Unieke code
:
EPC No.72021-G-2013_4693/EP17397/A001/D01/SD004
Stedenbouwkundige informatie
Risicozone voor overstromingen
:
Nee
Afgebakend overstromingsgebied
:
Nee
Afgebakende oeverzone
:
Nee
Overstromingsgevoelig
:
Nee
Erfgoed
:
Nee
Lasten
gemeenschappelijk
:
€ 50
Lasten huurder
:
€ 50
Commentaar
:
inhoudende onderhoud en gebruik gemeenschappelijke delen en lift (volgens jaarlijkse afrekening).
Google kaart
De kaart vergroten