Duplex Loft te Bosstraat 44 b 21, 3680 MAASEIK

€ 1.300

Algemeen
Adres
:
Bosstraat 44 b 21, 3680 MAASEIK
Prijs
:
€ 1.300
Aantal slaapkamers
:
2
Aantal badkamers
:
1
Bewoonbare opp.
:
105 m²
Comfort
Verwarming
:
Individueel per appartement
Oriëntatie achtergevel
:
Zuid
Lift
:
Ja
Keuken
:
Geïnstalleerd voorzien van alle comfort
Omschrijving

Luxe duplex loft op de tweede verdieping met 2(+1) slaapkamers, ruim terras en optioneel een staanplaats, gelegen in het centrum van Maaseik.

 

In het hart van Maaseik, op de charmante en historische Bosstraat, bevindt zich een uniek stadsappartement in Het Gulden Cruys (anno 1687). Het appartement werd volledig gerenoveerd met respect voor het authentieke karakter en met oog voor hedendaagse kwaliteit en comfort. U bent de eerste bewoner die hier van kan genieten!

 

ALGEMEEN:

  • Gesitueerd in een kleinschalige residentie met 2 appartementen en 1 handelsruimte in het centrum van Maaseik.
  • +/- 105m2 bewoonbare oppervlakte + 5,5m2 terras.
  • Aanwezigheid van een lift in het gebouw.
  • Het appartement beschikt optioneel over een staanplaats aan de achterzijde (€50/maand).
  • Het appartement is voorzien van een hoogwaardige parket- en tegelvloer.
  • Voorzien van zonnepanelen.
  • Gemeenschappelijke kosten: €100/maand.

 

 

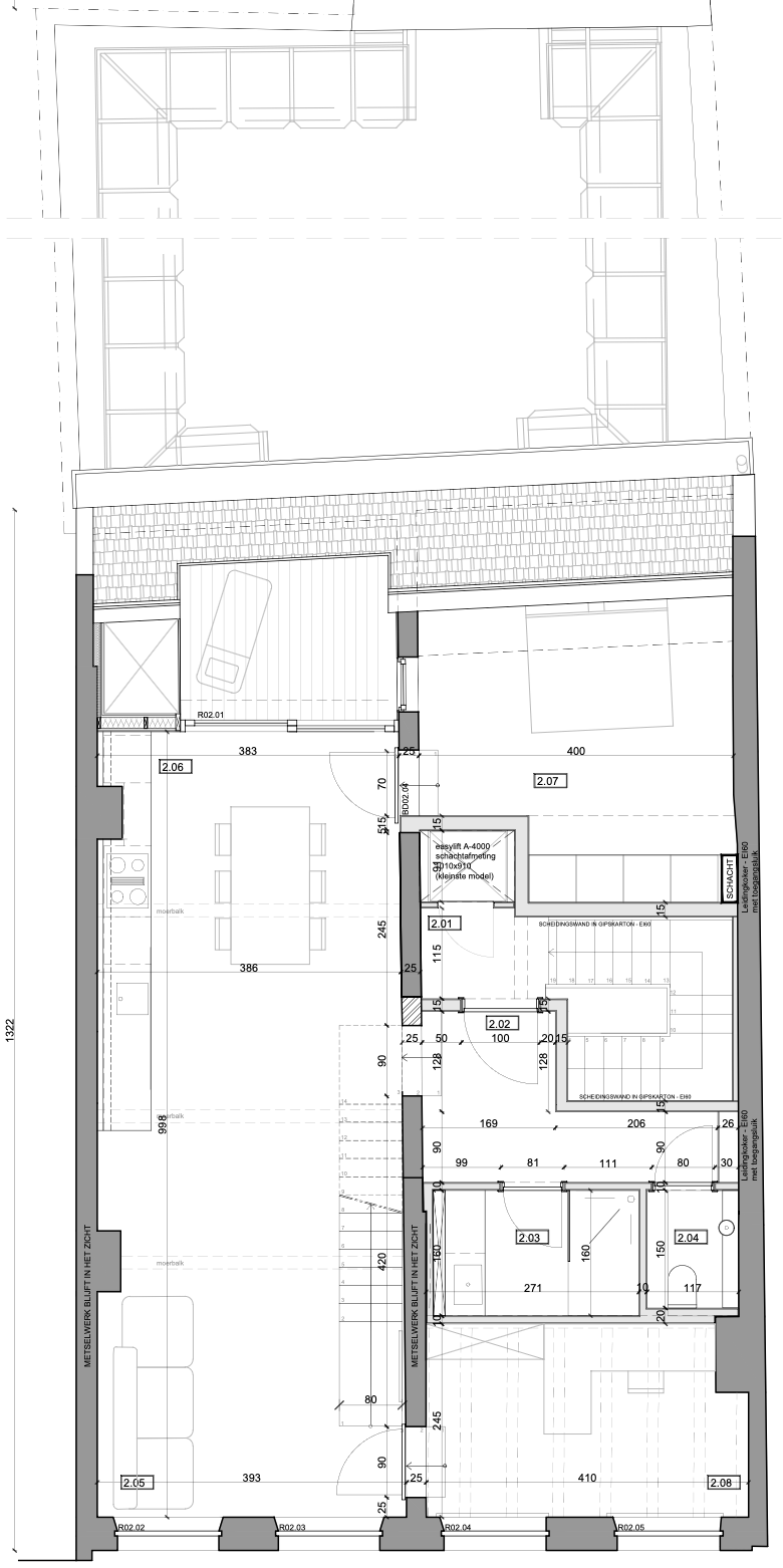
INDELING LOFT:

  • Gelegen op de tweede verdieping. Personenlift aanwezig in het gebouw.
  • Inkomhal met toegang tot de leefruimte, badkamer en gastentoilet.
  • De leefruimte omvat een open keuken en grote raampartijen aan de achterzijde die zorgen voor overvloedig daglicht. Deze ruimte biedt tevens toegang tot het zuidgerichte terras aan de achterzijde van het pand.
  • Moderne keuken uitgerust met een kookplaat met ingebouwde dampkap, spoeltafel, oven en koelkast.
  • Slaapkamer 1: ruime slaapkamer aan de achterzijde.
  • Polyvalente ruimte gelegen aan de voorzijde van het pand, met open toegang naar de leefruimte. Eventueel in te richten als slaapkamer, hobbyruimte, bureel, dressing of berging.
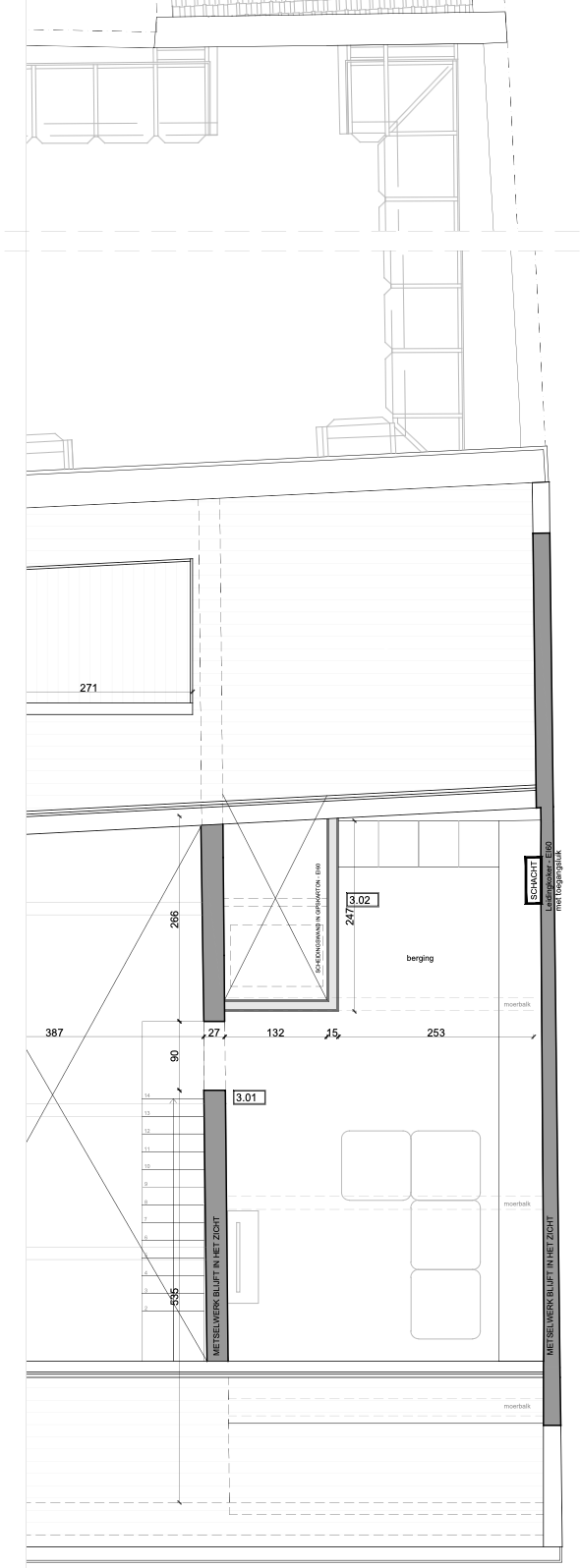
  • Mezzanine: eveneens perfect als bureau, hobbyruimte, gezellige tv-hoek of extra slaapkamer.
  • Badkamer voorzien van wasmeubel met wastafel, spiegel en inloopdouche.
  • Gastentoilet met fonteintje.

 

Vrij per direct.

 

Financiële Info
Energie & Elektriciteit
EPC
:
98 kWh/m².jaar
Unieke code
:
EPC No.72021-G-OMV_2023061474/EP07506/A001/D02/SD001
Stedenbouwkundige informatie
Overstromingsgevoelig
:
Nee
Erfgoed
:
Nee
Lasten
gemeenschappelijk
:
€ 100
Commentaar
:
inhoudende onderhoud en verbruik gemeenschappelijke delen en lift.
Google kaart
De kaart vergroten